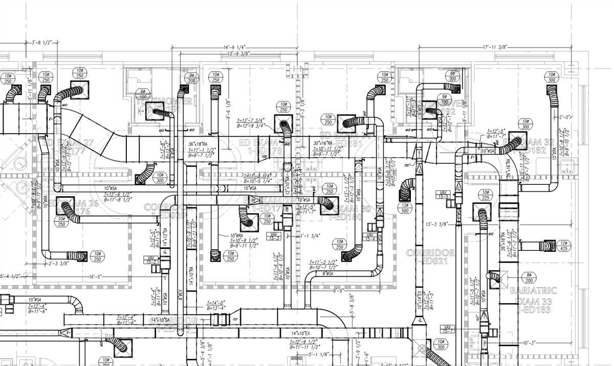
Projektiranje strojarskih instalacija obuhvaća grijanje, hlađenje, ventilaciju, klimatizaciju, plinske instalacije i bazensku tehniku. Za svaku novu građevinu takav projekt je zakonski obavezan, ali u praksi znači puno više – priliku da se unaprijed osmisli sustav koji će biti funkcionalan, pouzdan i povoljan za samog investitora.
Prilikom izrade projekta naglasak stavljamo na suradnju s drugim strukama. S elektroinženjerima usklađujemo način upravljanja sustavima, a s arhitektima i dizajnerima pazimo da se instalacije uklapaju u prostor bez narušavanja izgleda i funkcionalnosti objekta.

Pravilno projektirani sustavi ne znače samo udobnost i uštedu, nego i sigurnost te usklađenost s propisima, što je ključno za dobivanje dozvola i bezbrižnu upotrebu objekta.
Ako planirate gradnju ili prilagodbu postojećeg sustava, slobodno nam se obratite. Rado ćemo pronaći rješenje koje će najbolje odgovarati vašim potrebama i prostoru.
Iskustva iz Prakse
Na blogu donosimo primjere iz prakse, informacije o energetskom certificiranju i iskustva s gradilišta.
[blocksy_posts limit=”3″ has_pagination=”no”]


